1. BUBBLE-K


BUBBLE-K 상업용 주방 자동소화창 치는 상업용 주방의 조리기구, 후드, 덕트에 적용되는 소화설비입니다.
BUBBLE-K 상업용 주방 자동소화장치용 약제는 중성계 액체소화약제로 주방에서 발행하는 화재에 적용하는 경우, 유면을 냉각시키고 거품층을 형성하며, 산소를 차단하여, 유증기가 누출되는 것을 차단합니다.
BUBBLE-K 상업용 주방 자동소화창치가 화재로 인하여 작동하는 경우, 방호구역의 급기 공조설비를 차단하고, 배기공조설비는 작동상태를 유지하는 것이 효과적입니다.
배기공조설비가 작동하는 경우, 후드나 덕트의 온도를 낮추어 주고 소화약제의 방출 및 이동에 도움이 됩니다.


BUBBLE-K 상업용 주방 자동소화창치는 11.5L 용기에 소화약제를 저장하고, 가압용기를 이용하여 소화약제를 방출합니다.
소화약제용기는 단독 혹은 다중 설치하여 자동 및 수동으로 동작시킬 수 있습니다.
BUBBLE-K 상업용 주방 자동소화장치가 작동되면, 소화약제용기에 저장된 중성계 액체소화약제가 배관을 따라 이동하여 노즐을 통하여 화제대상물에 방출됩니다.
- 최적의 소화약제
중성계 액체소화약제는 일반화재(A급). 유료화재(B급). 식용유화재(K급)에 모두 적용임 가능한 뛰어난 소화성능을 가지고 있으며, 방출 후 조기구에 아무런 영향도 미치지 않습니다.
- 소화원리
BUBBLE-K 상업용 주방 자동소화장치용 약제는 K급 적용 중성계 액체소화약제로, 주방에서 화재에 적용하는 경우, 유면을 냉각시키고, 두꺼운 거품충울 형성하여 산소를 차단하고, 유증기의 누출되는 것을 차단하여 효과적인 소화 및 재발화를 방지합니다.

- 기계식 소화설비 (유리벌브형)
기계식 자동소화장치 중에서도 가장 신뢰도가 높고, 정확한 작동을 보장하는 유리벌브형 감지부를 적용하고 있습니다.
BUBBLE-K 에 적용되는 유리벌브 및 LINKAGE(감지기)는 세계적으로 품질을 인정받고 있는 독점 JOB사 제품입니다.

- 전기식 소화설비(온도센서형)
전기식 자동소화장치는 열기전력을 이용한 온도센서형 감지부를 사용하며, 바디는 스테인리스 재질로 내식성 및 내구성이 우수합니다.
예비화재온도와 화재온도가 설정되어 온도에 도달 시 제어반에 신호를 보내 경보음 및 밸브가 작동하여 소화약제 용기밸브를 작동시킵니다.

- 구성

BUBBLE-K 저장용기는 1 병용과 2 병용으로 구성되어 있으며,
각가의 용기에 독립배관 방식으로 소화약재배관을 구성합니다




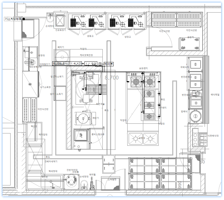
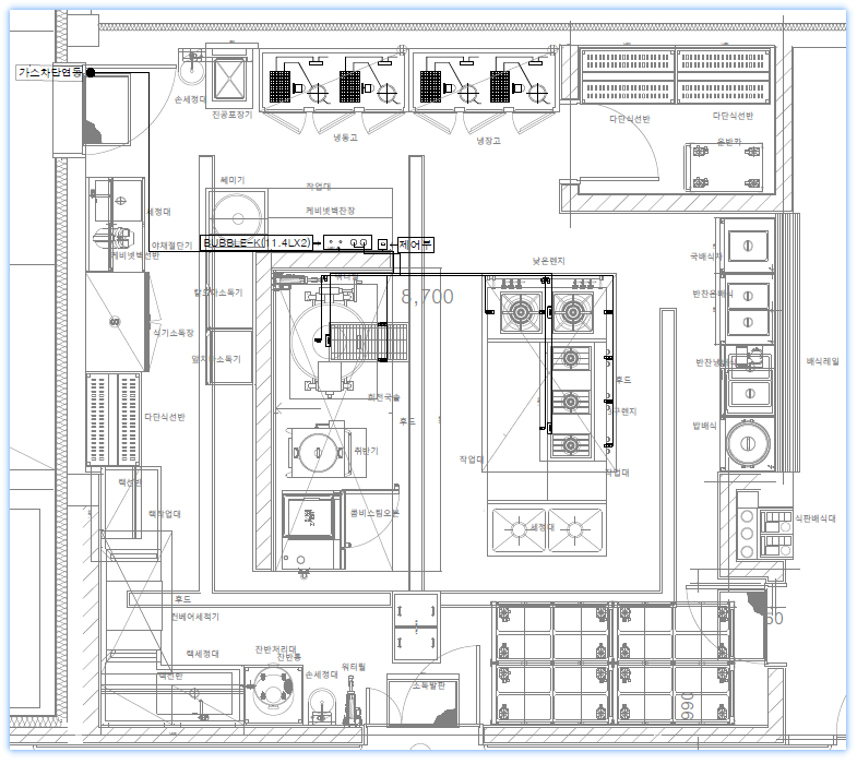
- 자동소화장치 배관도 (참고용)

- 시공 설치사진







자동소화장치 시스템은 패스트푸드 체인점, 소매점 푸드 코트, 식당, 편의점, 케이터링 시설, 모바일 푸드 트럭, 호텔 및 카지노, 경기장, 학교, 병원 등의 상업용 주방에 이상적입니다.
